제품소개

본문 바로가기
서브 헤더

고소작업대

SWSL Electric Scissor lifts
  • SWSL Electric Scissor lifts
  • SS3346AC
  • 비례 제어, 확장 플랫폼과 접이식 난간, 안전 장치, 경광·경적 시스템,
    AC 모터/유압 구동, 배터리 및 GPS 추적
    등 작업 편의와 안전을 강화하는 다양한 표준 기능을 제공합니다.

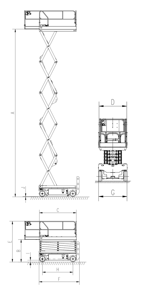
SS3346AC 외관도

SS3346AC 제원

제원 (Dimension)
최대 작업 높이 12m 39'4"
A 최대 플랫폼 높이 10m 32'10"
B 플랫폼 접은 높이 1.36m 4'6"
C 작업 플랫폼 길이 2.27m 7'5"
플랫폼 확장 길이 0.9m 2'11"
D 작업 플랫폼 폭 1.15m 3'9"
E 전체 높이 (가드레일 상승) 2.49m 8'2"
전체 높이 (가드레일 접힘) 1.95m 6'5"
F 전체 길이 2.47m 8'1"
G 전체 폭 1.17m 3'10"
H 휠 베이스 1.87m 6'2"
I 지상고 (접은 상태) 0.11m 0'4"
J 지상고 (확장 상태) 0.02m 0'1"
성능 (Performance)
정격 하중 320Kg 706lbs
확장 플랫폼 안전 작업 하중 113Kg 205lbs
최대 작업 인원 2 2
주행 속도 (접은 상태) 3.2Km/h 2mph
회전 반경(내측) 0 0'
회전 반경(외측) 2.2m 7'3"
승강 속도 58/38s 58/38s
최대 등판 능력** 25% 25%
최대 허용 작업 각도 1.5° / 3° 1.5° / 3°
조작 방식 비례 제어 비례 제어
구동 AC 모터 전륜 구동 AC 모터 전륜 구동
멀티 디스크 브레이크 전륜 이중 바퀴 전륜 이중 바퀴
타이어 - 무흔적 논펑크(외경 x 폭) 381×217mm 1'3" × 0.5'
배터리 4×6V / 240Ah 4×6V / 240Ah
충전기 24V / 30A 24V / 30A
중량 3120kg 6880lbs

* 작업 높이는 플랫폼 높이에 2m를 더한 값입니다.
* 등판 능력은 경사로 주행 시 적용되며,
자세한 등판 수준은 사용 설명서를 참조하시기 바랍니다.

SS3346AC 특징

표준 기능 (Standard Functions)
비례 제어 단방향 확장 플랫폼 접이식 난간 플랫폼 자동 잠금문
무공기 타이어 타이머 표준 지게차 삽입구 안전 정비 지지대
경적 경광등 이동 경고음 AC 모터/유압 펌프 구동
피트 보호 장치 비상 하강 시스템 비상 정지 시스템 자동 제동 시스템
경사 보호 시스템 충전 보호 시스템 고장 진단 시스템 플랫폼 안전 페달
충돌 방지 장치 무보수 배터리 GPS 추적 시스템 과부하 보호 시스템
선택 기능 (Optional Functions)
플랫폼 에어 라인 플랫폼 연결 AC 전원 지능형 인터커넥션 시스템
플랫폼 작업등 배터리 보충용 물 주입

회사명 : 산하한국 주식회사 대표자명 : 양쥐앤 주소 : 경기도 수원시 영통구 원천동 246(에이스스마트윙영통지식산업센터 1동 827/828호)

전화 : 031-280-2890/031-280-2891 팩스 : 031-280-2892 개인정보관리책임자 : 양쥐앤

Copyright © SUNWARD KOREA CO., LTD. All rights reserved.