
| Dimensions | |||
|---|---|---|---|
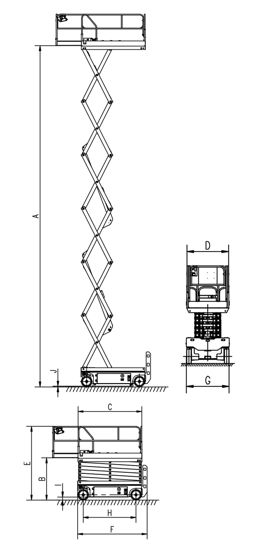
| Maximum Working Height | 14m | 45'11" | |
| A | Maximum Platform Height | 12m | 39'4" |
| B | Platform Folded Height | 1.49m | 4'11" |
| C | Working Platform Length | 2.27m | 7'5" |
| Platform Extended Length | 0.9m | 2'11" | |
| D | Working Platform Width | 1.15m | 3'9" |
| E | Total Height (Guardrails Raised) | 2.63m | 8'8" |
| Total Height (Guardrails Folded) | 2.09m | 6'10" | |
| F | Total Length | 2.47m | 8'1" |
| G | Total Width | 1.17m | 3'10" |
| H | Wheelbase | 1.817m | 6'2" |
| I | Ground Clearance (Folded) | 0.11m | 0'4" |
| J | Ground Clearance (Extended) | 0.02m | 0'1" |
| Performance | ||
|---|---|---|
| Rated Load | 320Kg | 706lbs |
| Safe Working Load on Extended Platform | 113Kg | 205lbs |
| Maximum Working Personnel | 2 | 2 |
| Travel Speed (Folded) | 3.2Km/h | 2mph |
| Turning Radius (Inner) | 0 | 0' |
| Turning Radius (Outer) | 2.2m | 7'3" |
| Lifting Speed | 62/42s | 62/42s |
| Maximum Gradeability** | 25% | 25% |
| Maximum Allowable Working Angle | 1.5° / 3° | 1.5° / 3° |
| Control Method | Proportional Control | Proportional Control |
| Drive | AC Motor Front-Wheel Drive | AC Motor Front-Wheel Drive |
| Multi-Disc Brake | Front Dual Wheels | Front Dual Wheels |
| Tires – Non-Marking, Non-Puncture (Outer Diameter × Width) | 381×217mm | 1'3" × 0.5' |
| Battery | 4×12V / 300Ah | 4×12V / 300Ah |
| Charger | 24V / 30A | 24V / 30A |
| Weight | 3170kg | 6990lbs |
* Working height is calculated by adding 2m to the platform height.
* Gradeability applies when traveling on slopes.
For detailed gradeability levels, please refer to the user manual.
| Standard Functions | |||
|---|---|---|---|
| Proportional Control | Unidirectional Extendable Platform | Folding Guardrail | Automatic Platform Lock Gate |
| Non-Marking Tires | Timer | Standard Forklift Pockets | Safety Maintenance Support |
| Horn | Warning Light | Movement Alarm | AC Motor / Hydraulic Pump Drive |
| Feet Protection Device | Emergency Descent System | Emergency Stop System | Automatic Braking System |
| Slope Protection System | Charge Protection System | Fault Diagnosis System | Platform Safety Pedal |
| Collision Prevention Device | Maintenance-Free Battery | GPS Tracking System | Overload Protection System |
| Optional Functions | ||
|---|---|---|
| Platform Air Line | AC Power Connection on Platform | Intelligent Interconnection System |
| Platform Work Lights | Battery Refill Water Injection | |
Tel: +82-31-280-2890 / +82-31-280-2891 Fax: +82-31-280-2892 Person in charge of personal information: Yang Ji-Ahn